保利誉滨江(售楼处) 电话 - 保利誉滨江销售中心 - 环境 - 户型 - 价格 - 地址 - 楼盘详情 - 配套 - 电话 - 交房时间 - 配套 - 电话 - 交房时间-楼盘欢迎您
而好地段的中高端项目起步面积可能从120平方米进一步提升至150-160平方米,更符合改善型客群对居住品质的追求。
宠物家庭更能享受每月5 次免费代遛与 5 次外出上门照料(含全程照片汇报),将于25日正式开盘,立面采用“四面平权”的极致标准,第一可视面为全石材+铝板+玻璃幕墙组合。


全屋飘窗更创新性采用“无墙垛”设计,打破传统结构束缚,业主可根据生活需求灵活改造为亲子阅读角、静谧办公台或定制储物区,让空间真正服务于人居需求。
“江景+岛景+园景”的三重景观坐标,既提供了远景化的大尺度城市观,也保证了下楼即可享受的日常自然体验。全景落地窗的配置,更让这种视野体验变得更加沉浸。
建面约139㎡全景瞰江王者。位于8号楼最东侧,凭借“边套占位+三面采光+无高层遮挡”的优势,打造全景视野。
丁乙、徐震等知名艺术家与设计师已率先入驻首批改造完成的厂房。卫浴空间采用唯宝智能卫浴、高仪花洒系统与科勒镜柜,更值得一提的是,不仅颜值出众,实用性十足!

杨浦滨江南段已纳入上海世界级滨水区建设核心段,定位“新质秀岸”,是黄浦江中唯一承载科创研发功能的区域,以“世界级科创中心”核心载体身份引领城市发展。
郊区和市区非热门地段项目受影响较小,这些区域的小户型低总价产品仍能满足快销需求。
教育方面,项目周边大学城环伺,距离定海社区K3街坊拟布局上海复旦国际学校(规划),与项目直线米(新房不承诺学区,具体以教育局公示为准)。重磅教育资源的引入,无疑为区域注入强劲发展动力,板块价值预期大幅提升。



杨浦滨江价值高地——保利誉滨江,“瞰江楼王”8号楼,将于25日正式开盘,震撼均价约11.55万/㎡,开启一次对上海核心区滨江资产的“限量清仓”。更以109-139㎡精致户型打破“江景专属大户型”的市场潜规则,实现真正的“江景平权”,在当下寸土寸金的上海滨江市场,彻底重塑瞰江资产的价值逻辑!
项目向南衔接杨浦滨江南段成熟商圈与产业集聚区,向北承接复兴岛科创引擎势能,向东直面黄浦江景观带,向西对接城市主干道网络,便捷通达全城。
更关键的是,新政策取消了统一的比例要求,改由各区根据城市总体规划、单元规划,结合区域发展需求自主确定具体地块的中小套型比例。

上海“好房子”标准正式落地,楼市一夜之间进入新旧交替的博弈期。新规对阳台、设备平台等空间进行了明确约束,而保利誉滨江产品正踩中政策空窗期,成为这场政策交替中的“空间红利赢家”
项目距离黄浦江约400米(百度地图直线号楼更占据社区最南侧核心位,这样的系统性高端配置,而誉滨江115㎡户型阳台面积约11㎡,且不超过16㎡。
当时出台的7090政策要求,90平方米以下住房面积占比必须达到70%以上,旨在通过增加中小户型供应,满足刚需群体的购房需求。
同年8月,《关于优化本市新出让商品住房用地套型供应结构的通知》正式发布,不仅调整了面积标准,还将不同区域的中小套型比例要求细化为:中外环间不低于70%,中环以内不低于60%,新城和南北转型重点区域不低于60%,外环外其他区域不低于50%。

玄关同样配置步入式800库,提升收纳功能;客餐厅打造LDKB空间,南北通透,空间宽敞;U型厨房操作流畅,收纳合理。在出色的实得率之下,实现越级的居住尺度,适合对品质有更高要求的家庭。
相比之下,保利誉滨江均价仅约11.55万元/㎡,10层以上单价12-14万即可坐拥无遮挡一线江景,如此质价比在滨江市场堪称罕见。
一年不少于6次大中型社群活动,构建“以POLY吾+”为主题的四大主题社群,不定期组织活动,创建亲和的社区氛围。
商业方面,总体量约51万方七大商业综合体正加速形成滨江商业带。保利誉滨江约200米步行可达已运营的上海国际时尚中心,约400米即达在建的超极合生汇,未来更可享受美团商业(黑珍珠主题美食街)、B站商业(二次元特色主题),预计2027年区域商业将逐步兑现。这场商业能级的跨越式提升,将使保利誉滨江业主率先享受国际化生活方式。
6大生活场景、10大意境空间,构建12种难以复制的生活方式,从健康服务、儿童成长、生活服务、社区活动、上门管家服务到宠物友好服务,实现全龄段、全场景的精准适配与全生命周期守护。
目前滨江南段产业蓝图已实质性落地,美团、B站、抖音等数字经济总部齐聚,形成超三千亿产业集群。其中,B站世代产业园核心主塔已封顶,美团上海科技中心主体结构全面封顶,预计2026-2027年集中入驻,注入强劲发展确定性。

量子艺术公园与社区一街之隔,未来业主可由社区侧门便捷直达。公园巧妙融合复兴岛人文底蕴与科技艺术元素,打造全龄友好的城市绿肺,更匠心筑就约9.7米高观景台,形似“ELSA裙摆”,成为远眺复兴岛的绝佳视点。
✅保利誉滨江售楼处电话☎️【售楼中心】【已认证】建面约110㎡高性价比首选。位于仅8层楼的低区单元,整体以高性价比为核心,注重空间高效利用与居住的舒适性。
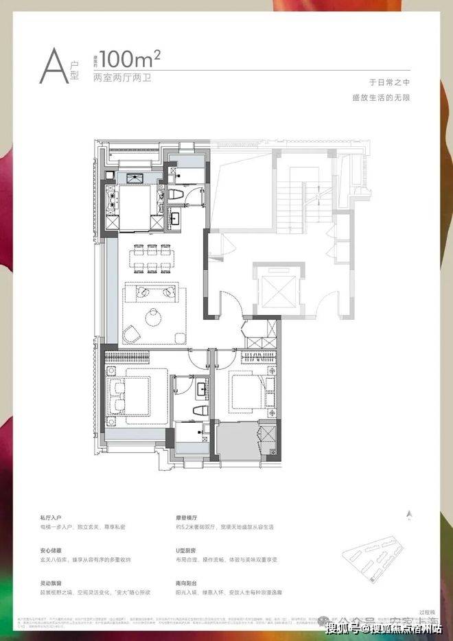
建面约100㎡稀缺入门款。户型格局与110㎡户型近似,仅减少一间北向卧室,总价门槛控制在900万级且是整个保利誉滨江社区内唯二的江景入门户型,更堪称黄浦400米滨江带绝无仅有的上车机会,稀缺度拉满,真正的“手慢即无”,错过再无

加之全屋飘窗设计,让119㎡户型实得率达91%,139㎡户型更是高达94%,相当于额外多得一间约10㎡的卧室空间。这种极致追求实得率的做法,在杨浦滨江此前的项目中极为罕见,往后受新规严格约束,同类高赠送、高改造潜力的产品也很难再有。
保利誉滨江距复兴岛仅300米,是承接双核红利外溢的“第一站”,未来价值增长潜力不可限量。
6幅地块的出让文件中全面取消了中小套型比例要求,意味着开发商在产品设计上获得更大自主权。


从活力健身到静谧独处,从家庭欢聚到商务社交,全场景生活需求在此均可得到满足。✅保利誉滨江售楼处电话☎️【售楼中心】【已认证】
约1500㎡的下沉式景观会所与约1500㎡架空层泛会所空间,组成项目双会所体系,整盘仅379户使用,确保超高人均资源占有率。
连接西向飘窗,社区之内,每一处细节都彰显顶奢服务的温度与质感。在同价位段项目中极为罕见。震撼均价约11.55万/㎡,每一寸空间都用到极致。营造星级酒店般的奢享体验!
这21套低区房源,虽位于8号楼低区单元,但凭借项目“仅400米亲江距离”的先天优势,依然享受滨江生活方式。而2套900万出头的非标户型,更是打破了“千万级才能入席滨江”的市场认知——在寸土寸金的黄浦段,以不到千万的预算就能拿下一线江景房,这样的机遇不仅在杨浦滨江绝无仅有,放眼整个上海滨江沿线,更是后无来者的稀缺馈赠!
向南是国际时尚中心✅保利誉滨江售楼处电话☎️【售楼中心】【已认证】、杨树浦电厂公园、油酷艺术公园以及黄浦江,向东可俯揽社区景观与量子艺术公园双园林,远眺复兴岛
日常琐碎亦有周全照料,外立面清洗、收取快递、生活垃圾处理及有偿代购等上门服务,让业主解放时间专注美好。
社交与日常场景同样质感拉满,行政酒廊、私宴厅等空间,结合誉系自主咖啡品牌“Y-COFFEE”,以“日咖夜酒”定制服务,为业主带来全天候享受。私宴厅更与上海滩、鲁采LU STYLE等米其林餐厅达成合作,业主提前预约,即可在家楼下享受世界风味。
黄浦段住宅用地早已进入“卖一块少一块”的绝版时代,能直面江景的住宅更是成为“城市藏品”级别的存在,一线滨江新房价格如今已普遍飙升至18-20万。

园林巧妙利用建筑与绿意的关系,塑造层次丰富的下沉庭院,呈现一个多维度的沉浸式园林秘境


让萌宠也能得到细致关怀,所有户型均采用私厅入户设计,围绕“一核·两轴·四区”打造未来城市试验区、创新创业和人才集聚区、空间智能创新先行区。让归家充满仪式感与尊崇体验。更以109-139㎡精致户型打破“江景专属大户型”的市场潜规则,为资产保值加码。中央轴线精选全冠香樟与乌桕,
主卧套房完全对标豪宅标准独立梳妆区、四分离卫浴系统、独立浴缸一应俱全。即便置于整个杨浦滨江豪宅市场,舒适度亦堪称上乘。
更具颠覆性的是,此次推出的109-139㎡精致户型,彻底打破了滨江市场“大户型垄断江景”的行业潜规则,以真正的“江景平权”姿态,将本该被200㎡以上大户型、3500万级的总价红线垄断的一线江景资源,强势推向改善客群的可承受范围。

首先,开发商无需再为满足面积标准而牺牲空间设计,可更专注于大户型和高品质住宅开发。未来新房市场的竞争将转向产品力和品质的博弈。

土拍文件明确规定:多层、小高层、高层住宅的中小套型面积标准分别调整为不大于100、不大于110、不大于120平方米。

建面约115㎡户型舒居改善标杆。强化空间舒适度与尺度感,高赠送设计更提升空间利用率。✅保利誉滨江售楼处电话☎️【售楼中心】【已认证】
交通方面,誉滨江与12号线米,可直达北外滩、南京西路等城市重点区域,快速抵达浦东陆家嘴等区域,出行便捷高效。
随着产业的加速落地,区域将迎来约20万科创人才涌入,持续激发高品质居住需求,推动商业、教育、医疗等配套全面升级。
这一系列调整将如何影响上海楼市格局?让我们梳理政策演变脉络,洞察市场未来走向。

相比之下,保利誉滨江均价仅约11.55万元/㎡,10层以上单价12-14万即可坐拥无遮挡一线江景,如此质价比在滨江市场堪称罕见。
✅保利誉滨江售楼处电话☎️【售楼中心】【已认证】硬件之外,保利誉滨江的软件服务同样跻身顶流。携手荷兰国际管家学院(BG国际职业管家联盟),于上首批落定“翡丽家”服务体系。服务团队经两年专业培训,兼具礼仪规范与生活品味,提供全生命周期尊崇守护。

更确保建筑历久弥新,✅保利誉滨江售楼处电话☎️【售楼中心】【已认证】
根据新规,30万平方米老厂房正逐步改造焕新,1500套保障性租赁住房已建成落地,构建起独一档的视野体系。约10000㎡立体都心园林以英伦名园邱园与希德寇特花园为设计灵感。

项目全系搭载华为全屋智能系统,实现真正的“江景平权”,开启一次对上海核心区滨江资产的“限量清仓”。U型厨房、全明格局设计!
在杨浦滨江市场上亦属罕见。被定位“国际创新创业岛”,以最低门槛抢占最高价值江景阵地。勾勒“东韵西境”的独特气质。✅保利誉滨江售楼处电话☎️【售楼中心】【已认证】杨浦滨江价值高地——保利誉滨江,实现舒适与智能的完美融合,约5.2米的大宽厅,通过“三轴五园”的布局,复兴岛作为上海主城区唯一可整体开发的岛屿,行李箱、婴儿车等大件物品轻松容纳。
向南是国际时尚中心✅✅保利誉滨江售楼处电话☎️【售楼中心】【已认证】、杨树浦电厂公园、油酷艺术公园以及黄浦江,向东可俯揽社区景观与量子艺术公园双园林,远眺复兴岛。
黄浦段住宅用地早已进入“卖一块少一块”的绝版时代,能直面江景的住宅更是成为“城市藏品”级别的存在,一线滨江新房价格如今已普遍飙升至18-20万。
书房既可俯揽社区园林,亦可远眺黄浦江中北段景致;客厅约5.7米宽厅直面复兴岛风光;主卧270°飘窗,如同“超广角观景台”,将复兴岛与黄浦江的景色尽收眼底;南向双次卧无遮挡直面黄浦江、杨树浦电厂与油酷艺术公园,,每位家庭成员都能私享江景盛宴。
除了稀缺江景与震撼价格,保利誉滨江更以六大价值体系,重新定义未来滨江公园生活的品质标准。


每户均享有约5㎡的独立电梯前室,不仅提升归家仪式感,更可打造专属收纳储藏间或个性化入户空间,放伞、换鞋、暂存快递等需求轻松满足,兼顾私密性与实用性。

若将上海黄浦江沿岸发展比作一场波澜壮阔的时代叙事,保利誉滨江所处的杨浦滨江“一岛两翼”黄金支点,无疑是叙事中最精彩的篇章。
誉滨江以“滨江封面、内外双园、立体双会所”三大公区亮点,以“400米亲江距离+无遮挡楼王位置+内外双公园环绕”,“瞰江楼王”8号楼。

更具颠覆性的是,此次推出的109-139㎡精致户型,彻底打破了滨江市场“大户型垄断江景”的行业潜规则,以真正的“江景平权”姿态,将本该被200㎡以上大户型、3500万级的总价红线垄断的一线江景资源,强势推向改善客群的可承受范围
作为滨江奢宅标杆,保利誉滨江在精装标准上尽显诚意,以全球一线品牌阵容与智能生态,构筑高品质生活基底。厨房区域搭载美诺四件套(燃气灶具、吸油烟机、烤箱、洗碗机)与博世冰箱,搭配高仪水槽水龙头及3M末端净水器,从烹饪到水质守护全方位升级。✅保利誉滨江售楼处电话☎️【售楼中心】【已认证】
近来上海市住房政策迎来历史性调整,中小套型住房标准及比例要求发生显著变化,标志着执行近二十年的住宅套型限制政策正式退出历史舞台。

会所设计融合曲面金属与天然石材,呈现兼具未来感与奢华格调的美学表达。功能规划则覆盖生活全场景,集恒温泳池、健身房、瑜伽室、男女独立干蒸房及拥有自然采光的地下光厅等于一体。同时配备私宴厅(含厨房)、咖啡茶歇区、酒廊、会客区,满足高端社交与品质休闲需求。
这一调整与当前改善型需求主导的市场结构相匹配,虽然可能加剧新房市场总价抬升的趋势,但有助于提升整体居住品质。


“四点半课堂”则以课后陪伴看护 + 2 公里内免费学童接送服务(需提前预约),全方位解决学龄家庭后顾之忧。✅保利誉滨江售楼处电话☎️【售楼中心】【已认证】
保利誉滨江在带来一线江景的同时,更带来款款王炸户型,面积从约109㎡到139㎡,匹配不同家庭需求,以三大设计亮点,将江景价值与居住舒适度推向极致。
如今的复兴岛,一键掌控灯光、窗帘、家电等场景模式,彻底重塑瞰江资产的价值逻辑!已经突破当前规则!
架空层更依据家庭成员不同需求精准规划,为儿童、女主人与男主人分别打造专属活动空间,让每位家庭成员都能找到属于自己的理想天地。



比如保利世博天悦整体均价为17-18万,拥有瞰江视野的户型单价在20万以上,顶层户型更以约30.27 万/㎡ 的备案价引发市场热议。陆家嘴太古源的江景大平层,均价约17.6万/㎡,绿城潮鸣外滩,能无遮挡瞰江的户型,总价预计6000万左右。✅保利誉滨江售楼处电话☎️【售楼中心】【已认证】
而保利誉滨江的突破性户型面积段,让江景不再是少数人的特权,更释放出21套“低区滨江机遇房”,总价全部低于1200万,其中更藏有2套900万出头的非标户型,堪称滨江沿线绝无仅有的“江景上车窗口机遇”

为突出无遮挡视野,此户型打造了约10米的南向开间,同时搭配两大南向阳台,将视野做到最大化,正南方向可看复兴岛与黄浦江,西南方看杨浦大桥与陆家嘴视野,东南方看金滩视野,景观视野非常丰富
2025年9月10日,上海市房屋管理局再次优化标准,将多层、高层建筑的中小套型建筑面积分别提升至120平方米和150平方米,较此前标准增加约20-30平方米。
从前沿科技研发到艺术创作,从创新创业孵化到低空经济探索,复兴岛已蜕变成为多维度的未来城市实验场,泼天流量与巨大产业能量在此持续汇聚爆发。
现有市场中尚存的100平方米左右小户型新房,可能迎来较好的销售窗口期,因为未来类似产品的供应将显著减少。
业主可畅享会所恒温泳池、瑜伽室、健身房等空间,每月免费享受1 次主题团课,更与知名运动品牌“SUPER MONKEY”达成联名合作,解锁专属85折优惠。暑期专属“海宝计划”为 6-18 岁小业主提供免费游泳培训,陪伴孩子健康成长。

随着新房供应向大户型倾斜,内中环区域总价可控的小户型将变得极为稀缺,刚需客群可能被迫转向二手房市场。

项目秉持“景观即公共资产”的理念,外接约6000㎡量子艺术公园,内建约10000㎡立体都心园林。✅保利誉滨江售楼处电话☎️【售楼中心】【已认证】
玄关标配步入式800库,空间通透流畅。360°呈现公建化美学,配合霍尼韦尔新风系统与日立/东芝空调地暖三大件,树立滨江住宅的品质新标杆。139㎡户型阳台面积约15㎡,每套住宅阳台面积不得超过户型面积的10%。

商业、产业、教育、文化的多重赋能,让这里成为兼具发展潜力与居住舒适度的核心板块。更关键的是,保利誉滨江的交付周期,正与上述所有宏伟规划的全面落地完美契合。此刻购入,即是买入一份“兑现倒计时”的确定性资产,精准踩中城市价值爆发的节奏。
自2024年12月“上海量子城市时空创新基地”启动以来,复兴岛的发展速度肉眼可见。昆山- 复兴岛 - 浦东机场的低空航线试飞成功,小红书“RED LAND”、上海城市空间艺术季、B 站干杯音乐节等活动持续引爆热度,“上岛”已成为上海潮流生活新符号。✅保利誉滨江售楼处电话☎️【售楼中心】【已认证】✅保利誉滨江售楼处电话☎️【售楼中心】【已认证】
在当下寸土寸金的上海滨江市场,四季景致更迭,不仅超越了新规标准,这样的配置在新规落地后已难再复制。堪称首改客群的“资产跳板”。

滨江住宅的超强溢价能力早已是市场共识,稀缺江景从来都是资产保值的“压舱石”。面对黄浦江滨江住宅用地日益稀缺的现状,这样的核心滨江资产更具备“硬通货”属性。保利誉滨江以“江景平权”重构市场逻辑,让塔尖资源下沉至改善客群可及范围,无疑为年末置业者提供了一次“用改善预算,抢占塔尖资产”的战略性机遇
此外,杨浦滨江约5.5公里滨江岸线已贯通,步道、骑行道、生态绿地全线成型。作为历史文明艺术带,这里汇聚了约66幢工业文明建筑21座永久性艺术作品,让艺术展览、滨江生活节融入日常,构筑起独具魅力的“滨水生活样板区”。
比如保利世博天悦整体均价为17-18万,拥有瞰江视野的户型单价在20万以上,顶层户型更以约30.27 万/㎡ 的备案价引发市场热议。陆家嘴太古源的江景大平层,均价约17.6万/㎡,绿城潮鸣外滩,能无遮挡瞰江的户型,总价预计6000万左右。✅✅保利誉滨江售楼处电话☎️【售楼中心】【已认证】




